
Xe Nâng 16 Tấn
Tâm tải: 900 mm
Trọng lượng vận hành: 24,000 kg
Chiều dài cơ sở: 3.800 mm
1, sử dụng van giới hạn tốc độ và van chọn áp suất, giảm tác động của hệ thống thủy lực, có thể hạ cột xuống đất khi động cơ tắt 2, sử dụng hợp lưu bơm kép làm việc...
HNF-160
Tải trọng định mức: 16,000 kg
Tâm tải: 900 mm
Trọng lượng vận hành: 24,000 kg
Chiều dài cơ sở: 3.800 mm
1, sử dụng van giới hạn tốc độ và van chọn áp suất, giảm tác động của hệ thống thủy lực, có thể hạ cột xuống đất khi động cơ tắt 2, sử dụng hệ thống thủy lực làm việc hợp lưu bơm kép, giảm đáng kể mức tiêu thụ nhiên liệu, tiêu thụ năng lượng. Hệ thống thủy lực được trang bị bộ tản nhiệt dầu và thiết bị bảo vệ áp suất ngược, đảm bảo cân bằng nhiệt của máy 3, sử dụng bộ biến mô thủy lực tuabin đôi, thay đổi tốc độ vô cấp, điều khiển đòn bẩy đơn để thay đổi tốc độ, vận hành dễ dàng hơn.
4, được sử dụng rộng rãi trong các sân bay, bến cảng, bến cảng, nhà ga, nhà kho và các dịp cường độ làm việc lớn khác để bốc xếp, xếp chồng và vận chuyển khoảng cách ngắn 5, trục trước sử dụng trục lái loại hạng nặng, phóng to kích thước của vỏ trục, trung tâm và ổ trục, bánh răng côn xoắn ốc và bánh xe bánh xe hành tinh giảm tốc độ xoắn, hỗ trợ vỏ cầu kết cấu thép, tăng khả năng chịu tải và tuổi thọ.
6, Vành loại không có nan hoa, tăng khả năng chịu lực của trục.



Cách sửa trục dẫn động Xe nâng 16 Tấn
Vỏ trục của xe nâng được cố định chắc chắn vào khung xe nâng. Vì trục dẫn động và khung được kết nối chặt chẽ nên trục dẫn động chịu tải trọng lớn nhất khi xe nâng xử lý hàng hóa và khi xe nâng làm việc trên đường không bằng phẳng hoặc tải trọng của càng nâng không cân bằng, trục dẫn động sẽ bị hư hỏng do uốn cong, gãy, vỏ trục độ mòn của lỗ ổ trục và độ mòn của vỏ trục, v.v.
Kiểm tra và sửa chữa uốn cong vỏ cầu dẫn động xe nâng
Kiểm tra độ uốn của vỏ trục. Trước khi thử nghiệm, điều đầu tiên là phải hiệu chỉnh nửa trục dương và độ phẳng của mặt bích tiếp xúc phẳng của đầu trục để loại bỏ lỗi đảo hướng mặt tròn của nó. Sau đó cố định nửa trục tiêu chuẩn vào vỏ trục lái, siết chặt ổ trục, kiểm tra tâm của nửa trục bên trái và nửa trục bên phải từ bên trong vỏ để xem có bị cong hay không. Sự khác biệt giữa hai trục phải nhỏ hơn 0,75mm.
Vỏ trục lái phải được sửa chữa khi vượt quá giới hạn. Trong quá trình thử nghiệm, biến dạng không được lớn hơn biến dạng uốn ban đầu và phải giữ áp suất điều chỉnh trong một khoảng thời gian để làm cho vỏ trục có một biến dạng dẻo nhất định. Nếu biến dạng quá lớn, biến dạng uốn lớn hơn 2 mm, việc hiệu chỉnh có thể được thực hiện sau khi gia nhiệt trước, nhưng nhiệt độ gia nhiệt không được phép vượt quá 700 độ. Tốt hơn là tránh điều chỉnh hệ thống sưởi đối với vỏ trục đúc.

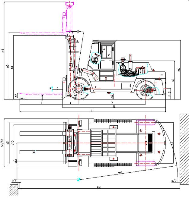
Thông số của xe nâng 16 tấn
Mục | Mục chi tiết | Đơn vị | ||
HNF-150 | HNF-160 | |||
Đặc trưng | Tải trọng định mức | Q(t) | 15 | 16 |
Trung tâm tải | c(mm) | 600 | 900 | |
Chiều dài cơ sở | y(mm) | 3500 | 3500 | |
Cân nặng | Cân nặng | Kilôgam | 22000 | 25000 |
khung gầm | Thông số lốp.:Mặt trước | 12.00-24-18PR | 12.00-24-18PR | |
Thông số lốp.:Phía sau | 12.00-20-18PR | 12.00-20-18PR | ||
Số lượng lốp, trước/sau (bánh xe X-drive) | 4\2 | 4\2 | ||
Vệt bánh xe: Phía trước | b10(mm) | 2060 | 2060 | |
Vệt bánh xe: Phía sau | b11(mm) | 2330 | 2330 | |
Kích thước | Góc nghiêng cột buồm/xe ngựa (trước/sau) | Bằng cấp (bằng cấp) | 6\12 | 6\12 |
Chiều cao cột (hạ ngã ba) | h1(mm) | 3625 | 3625 | |
Chiều cao nâng cột | h3(mm) | 3500 | 3500 | |
Chiều cao nâng tối đa | h4(mm) | 5375 | 5375 | |
Chiều cao đến tấm bảo vệ đầu (chiều cao đến cabin) | h6(mm) | 3365 | 3365 | |
Chiều cao tổng thể (có nĩa) | l1(mm) | 7640 | 7640 | |
Phuộc mặt trước thẳng đứng tới phần đuôi xe | l2(mm) | 5840 | 5840 | |
chiều rộng tổng thể | b1/b2(mm) | 2750 | 2750 | |
Kích thước ngã ba | s/e(mm) | 1800X180X90 | 1800X180X90 | |
Chiều rộng xe nâng | b3(mm) | 2380 | 2380 | |
Khoảng sáng gầm xe tối thiểu (có tải) | m1(mm) | 265 | 265 | |
Khoảng sáng gầm xe tối thiểu ở tâm trục cơ sở (có tải) | m2(mm) | 325 | 325 | |
Bán kính quay tối thiểu | Wa(mm) | 5800 | 5800 | |
Tốc độ di chuyển (có tải/không tải) | km/giờ | 26/30 | 26/30 | |
Hiệu suất | Tốc độ nâng tối đa (có tải/không tải) | mm/s | 250/260 | 250/260 |
Tốc độ hạ tối đa (có tải/không tải) | mm/s | 430/330 | 430/330 | |
Lực kéo | N | 15000 | 15000 | |
Khả năng phân loại (có tải/không tải) | % | 20/22 | 20/21 | |
Phanh lái | Đĩa kẹp thủy lực | Đĩa kẹp thủy lực | ||
Thương hiệu/kiểu động cơ | Tùy chọn một | động cơ Yuchai | động cơ Yuchai | |
Động cơ | YC6J175-T302 | YC6J175-T302 | ||
Tùy chọn hai | Đông Phong Cummins | Đông Phong Cummins | ||
QSB6.7-C190 | QSB6.7-C190 | |||
Số xi lanh | 6 | 6 | ||
Người khác | Bánh răng truyền động (Trước/sau) | 2\1 | 2\1 | |
Phụ kiện áp suất làm việc | quán ba | 160 | 160 | |
Phụ kiện sử dụng lượng dầu | l/phút | 60 | 60 |











Chú phổ biến: Xe nâng 16 tấn, Trung Quốc, nhà sản xuất, nhà máy, tùy chỉnh
Một cặp
Xe nâng 18 tấnTiếp theo
Xe nâng 15 tấnBạn cũng có thể thích
Gửi yêu cầu











